Villa singola in vendita

Cameri, Via Marè
Informazioni in agenzia
5 locali 5 locali
200 Mq 200 Mq
2 bagni 2 bagni

Villa singola in vendita

Cameri, Via Marè

Descrizione annuncio

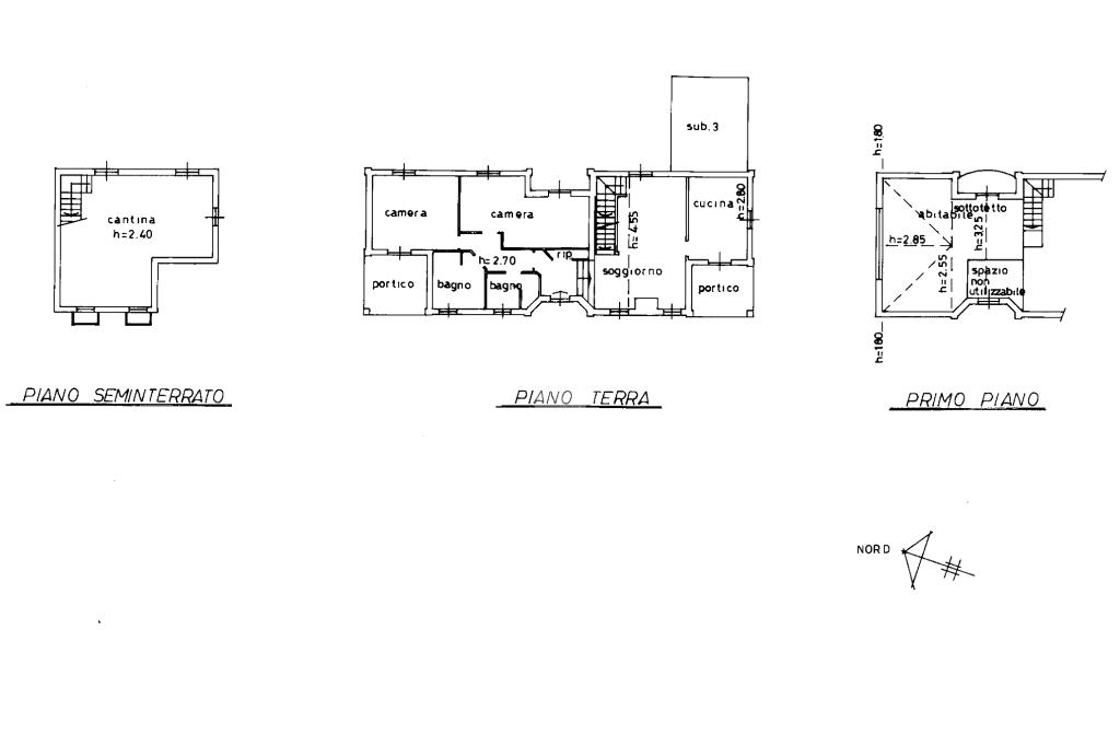
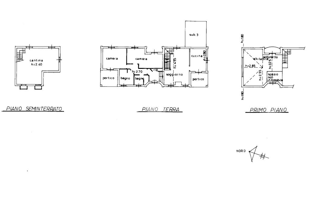
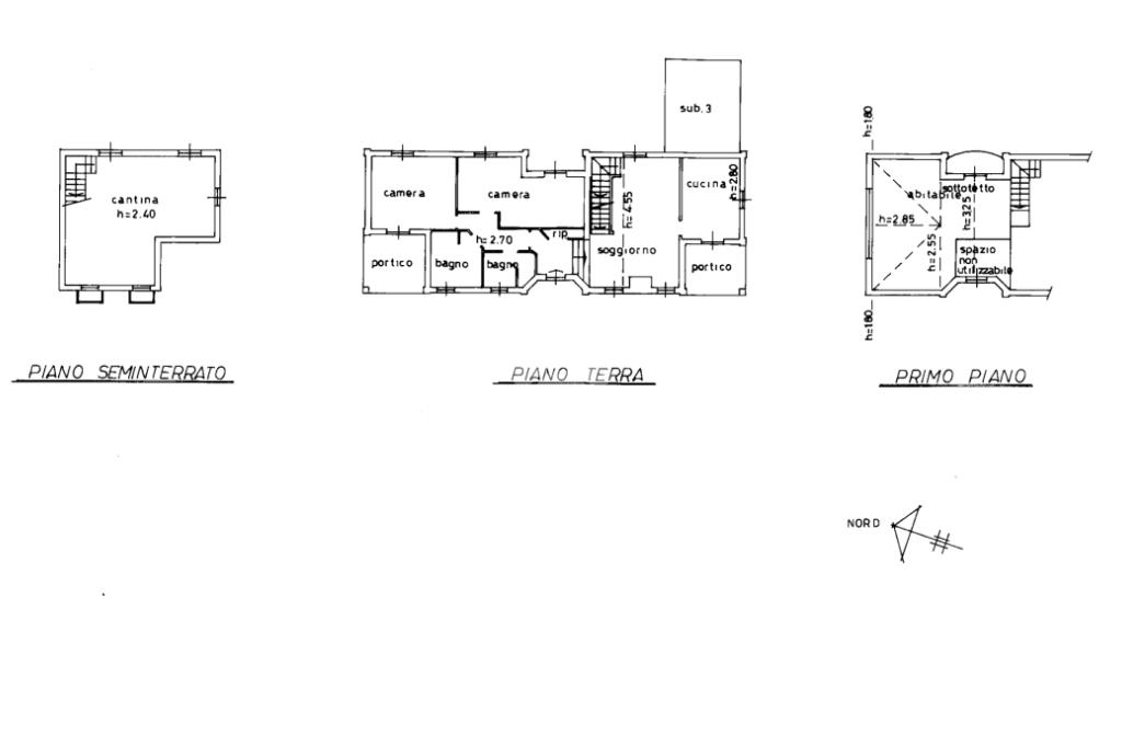
CAMERI: VILLA SINGOLA SU UN PIANO CON PISCINA.

Nel comune di Cameri, proponiamo in vendita una villa singola in classe A2, costruita nel 2006 e libera su quattro lati.

La proprietà si sviluppa su un unico livello e offre ampi spazi per ogni esigenza. L’ingresso si apre su un’ampia zona giorno con soggiorno dotato di camino e cucina abitabile, entrambi con accesso diretto al portico coperto, ideale per pranzi e cene all’aperto. E' presente, inoltre, una camera matrimoniale mansardata che affaccia sull'area giorno.

La zona notte, ben separata e divisa in maniera ottimale dalla zona giorno, presenta due bagni finestrati con doccia, due camere matrimoniali con doppia esposizione e uscita diretta all'esterno, e un ripostiglio.

La villa presenta, inoltre, un piano seminterrato dove troviamo una spaziosa taverna perfetta per momenti di convivialità, oltre a una lavanderia funzionale.

Completano la proprietà un box auto doppio e un giardino curato con piscina privata.

La casa è dotata di impianto fotovoltaico, aria condizionata e gode di classe energetica A2, per un elevato risparmio energetico.

Soluzione ideale per chi cerca indipendenza, comfort e spazi ben distribuiti.

Mostra tutto

Nelle vicinanze

Trasporto pubblico Trasporto pubblico
Galliate
Galliate
2,8 Km
Via Marconi - Via Edison
Via Marconi - Via Edison
320 m
Via Guglielmo Marconi - Via Edison
Via Guglielmo Marconi - Via Edison
340 m
Ricariche auto elettriche Ricariche auto elettriche
EnelX Via Italia Cameri
500 m
EnelX Piazza della Caserma Cameri
1,0 Km
EnelX Via Artiglieri Cameri
1,7 Km
Scuole Scuole
Istituto Comprensivo Francesco Tadini
170 m
Scuola dell'Infanzia "Don Lorenzo Valli"
990 m
Farmacia Farmacia
Farmacia Comunale
470 m
Supermercati Supermercati
Coop Cameri
1,3 Km
Super Dì
2,5 Km
Bar Bar
Bar
1,1 Km
Dancing Jambo
2,4 Km
Ristoranti Ristoranti
La Torre
590 m
Ciao
2,9 Km
Chef Express
2,9 Km
Roadhouse
2,9 Km
Mostra tutto

Caratteristiche

Rif.:
61125792
Piano:
1 di 1 (Piano terra con giardino)
Box:
1
Posti auto:
2
Balconi:
1
Camere da letto:
3
Mostra tutto
Prezzo Prezzo
Informazioni in agenzia
Spese annue Spese annue
€ 0
Proponi il tuo prezzoProponi il tuo prezzo

Classe Energetica

A2
A2
A2
A2
A2
A2
A2
A2
A2
EP globale non rinnovabile:
87.73 kW h/m² anno
EP globale rinnovabile:
141.16 kW h/m² anno
EP invernale del fabbricato:
EP estiva del fabbricato:
Anno di costruzione:
2006
Riscaldamento:
Autonomo
Tipo impianto:
A pavimento
Tipo alimentazione:
Pannelli

Ti interessa visionare l'immobile?

Fissa un appuntamento  Fissa un appuntamento

Richiedi informazioni

Clicca su Leggi per aprire l'informativa
* Questi campi sono obbligatori
Affiliato
Studio Galliate Uno Sas
Viale Quagliotti, 62 28066 Galliate (NO)

Il nostro staff


  • Benedetta Brustio
    Coordinatrice

  • Valentina Bozzola
    Collaboratrice

  • Gian Luca Ditella
    Affiliato

  • Martina Galgano
    Collaboratrice

  • Edoardo Ronza
    Affiliato

  • Riccardo Ronza
    Affiliato
Viale Quagliotti, 62 28066 Galliate (NO)
Zona: Galliate-Romentino-Cameri
Mostra su mappa
Orari: Dal Lunedì al Venerdì: 09.00 - 12.30 / 14.30 - 19.30 Sabato: 09.00 - 18.00
Affiliato
Studio Galliate Uno Sas
Viale Quagliotti, 62 28066 Galliate (NO)

2026 Tecnocasa Franchising S.p.A. - P. IVA 08365160152 - Via Monte Bianco 60/A 20089 Rozzano (MI). Ogni agenzia ha un proprio titolare ed è autonoma. Privacy policy | Policy utilizzo | Cookie policy