Trilocale in vendita

Galliate, Via Ludovico Sforza
€ 129.500
3 locali 3 locali
97 Mq 97 Mq
1 bagno 1 bagno

Trilocale in vendita

Galliate, Via Ludovico Sforza

Descrizione annuncio

GALLIATE - Proponiamo in vendita una porzione di bifamiliare che offre un ambiente accogliente e funzionale. Libero da Ottobre 2026.

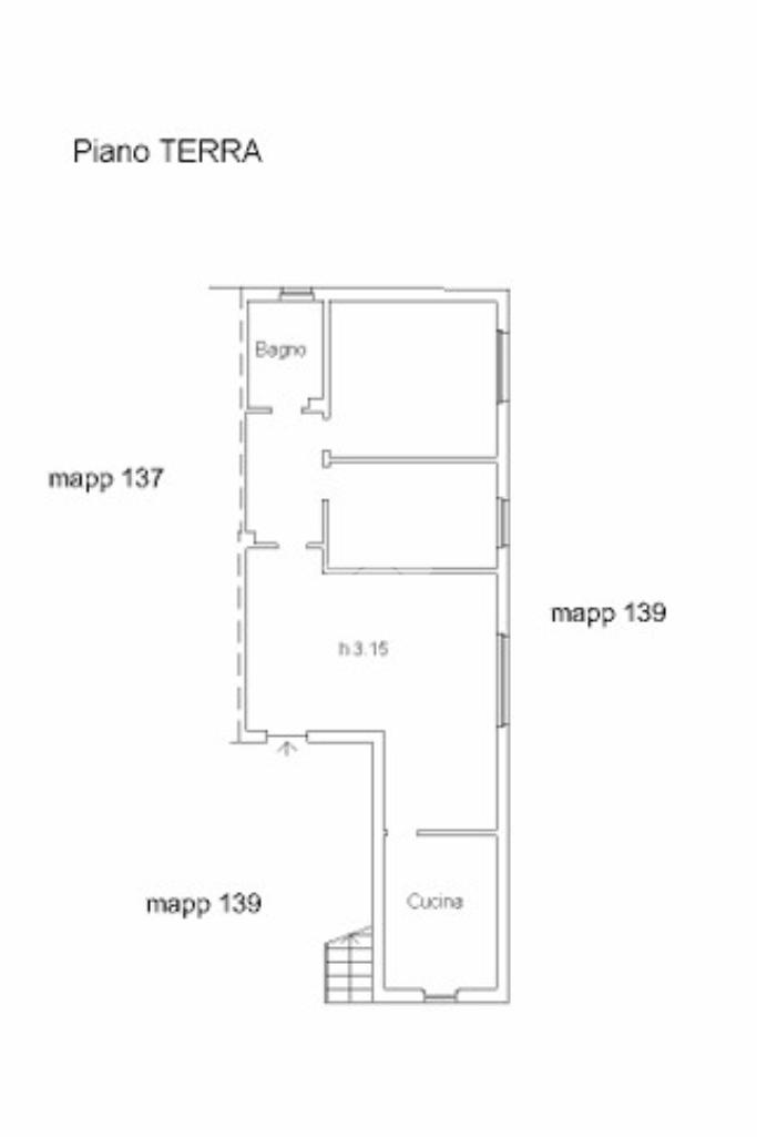
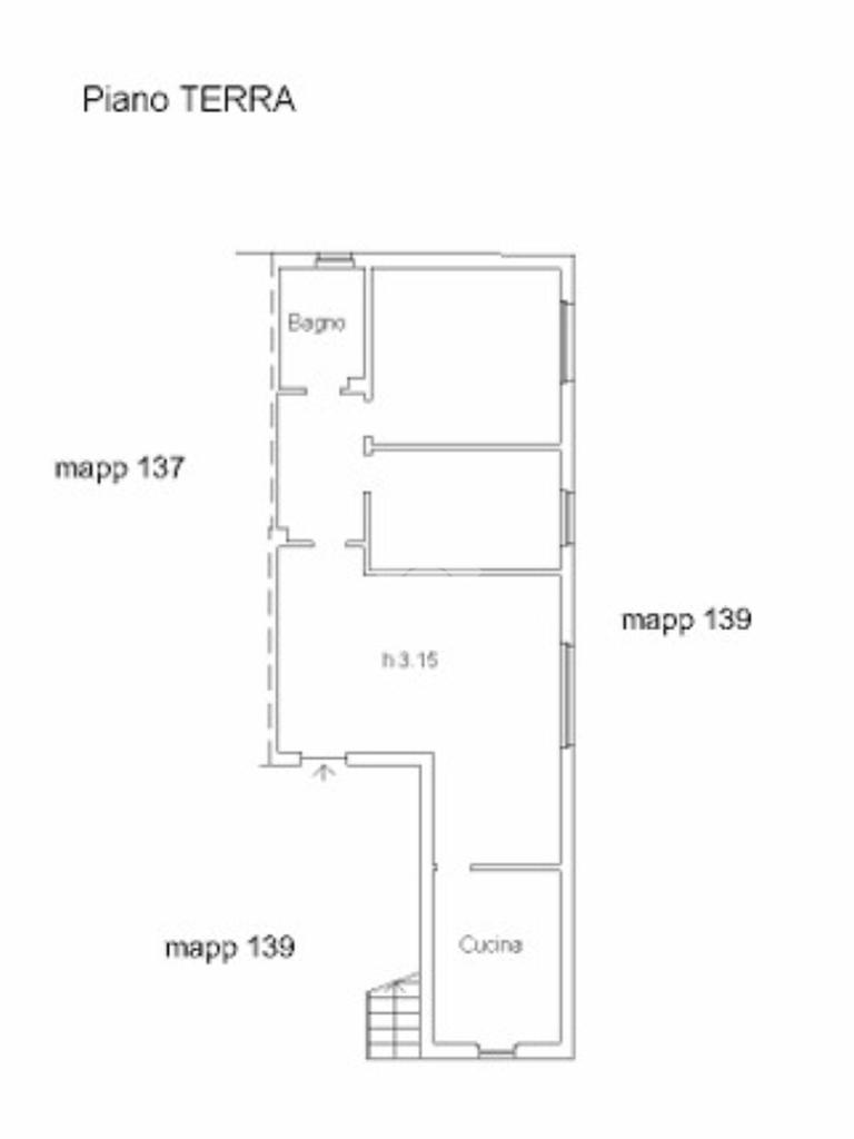
Questo trilocale posto a piano terra è composto da due camere da letto, cucina abitabile, soggiorno ed un bagno.

Uno dei punti di forza di questa proprietà è il giardino esclusivo, ideale per momenti di relax all'aperto o per chi ama il giardinaggio. Inoltre, l'immobile include un box auto, garantendo comodità e sicurezza per il parcheggio.

La gestione autonoma del riscaldamento e l'assenza di spese condominiali rendono questa soluzione particolarmente interessante per chi cerca indipendenza e risparmio. Una scelta ideale per chi desidera vivere in un contesto tranquillo senza rinunciare ai comfort moderni.

Mostra tutto

Nelle vicinanze

Trasporto pubblico Trasporto pubblico
Galliate
Galliate
720 m
Viale Leonardo da Vinci 12A (Galliate)
Viale Leonardo da Vinci 12A (Galliate)
180 m
Viale Leonardo da Vinci 108 (Galliate)
Viale Leonardo da Vinci 108 (Galliate)
290 m
Ricariche auto elettriche Ricariche auto elettriche
Galliate Mazzini | BeCharge
470 m
Galliate Galvani | BeCharge
850 m
Lidl Galliate
960 m
EnelX Parrocchiale S. Gaudenzio
2,3 Km
EnelX Romentino Piazza mercato
2,6 Km
Scuole Scuole
Asilo Suore Orsoline
360 m
Istituto Comprensivo Italo Calvino
390 m
Scuola Media Monsignor Angiolo Gambaro
770 m
Istituto d'Istruzione Superiore Biagio Pascal
1,9 Km
Scuola Media Statale Giulio Pastore
2,3 Km
Farmacia Farmacia
Farmacia Cusaro
290 m
Farmacia Mantellino
490 m
Farmacia Ferrari
740 m
Farmacia La Torre
1,3 Km
Farmacia Venanzi
2,4 Km
Ospedali Ospedali
Ospedale San Rocco
490 m
Supermercati Supermercati
MD Galliate
300 m
Lidl
950 m
Supermercati
1,1 Km
Centro Freschi
1,2 Km
Dico
1,2 Km
Negozi Negozi
Panetteria Bozzola
480 m
Buondì Maria Concetta
500 m
Negozi
500 m
Eleganza Guarlotti
540 m
Garzulino - Mondo Scarpa
1,1 Km
Bar Bar
Bellavista
310 m
Bar
350 m
MAMA'S
460 m
Le due colonne
480 m
Ristoranti Ristoranti
Osteria Del Borgo
290 m
IL Capriccio 2
400 m
La Cazòla
400 m
La Rambla
410 m
Da Edo's Osteria con Pizza
480 m
Mostra tutto

Caratteristiche

Rif.:
61130986
Piano:
Basso di 2
Totale piani:
2
Box:
1
Camere da letto:
2
Arredamento:
Assente
Mostra tutto
Prezzo Prezzo
€ 129.500
Rata mutuo Rata mutuo
€ 612 / mese
Spese annue Spese annue
€ 0
Proponi il tuo prezzoProponi il tuo prezzo

Classe Energetica

G
G
G
G
G
G
G
G
G
EP globale non rinnovabile:
303.96 kW h/m² anno
EP globale rinnovabile:
84.68 kW h/m² anno
EP invernale del fabbricato:
EP estiva del fabbricato:
Anno di costruzione:
1940
Riscaldamento:
Autonomo
Tipo impianto:
A radiatori
Tipo alimentazione:
Metano

Ti interessa visionare l'immobile?

Fissa un appuntamento  Fissa un appuntamento

Richiedi informazioni

Clicca su Leggi per aprire l'informativa
* Questi campi sono obbligatori

Calcola il tuo mutuo

Semplice e senza impegno
Anticipo

( % )
Mutuo

( % )

pochi semplici passi

inserisci i tuoi dati
Questionario completato
Grazie per aver richiesto un appuntamento senza impegno con un nostro Consulente del Credito e Assicurativo.

Hai inserito correttamente tutti i dati necessari e a breve riceverai una e-mail con un link da convalidare per inviare i tuoi dati.
Affiliato
Studio Galliate Uno Sas
Viale Quagliotti, 62 28066 Galliate (NO)

Il nostro staff


  • Benedetta Brustio
    Coordinatrice

  • Valentina Bozzola
    Collaboratrice

  • Gian Luca Ditella
    Affiliato

  • Martina Galgano
    Collaboratrice

  • Edoardo Ronza
    Affiliato

  • Riccardo Ronza
    Affiliato
Viale Quagliotti, 62 28066 Galliate (NO)
Zona: Galliate-Romentino-Cameri
Mostra su mappa
Orari: Dal Lunedì al Venerdì: 09.00 - 12.30 / 14.30 - 19.30 Sabato: 09.00 - 18.00
Affiliato
Studio Galliate Uno Sas
Viale Quagliotti, 62 28066 Galliate (NO)

2026 Tecnocasa Franchising S.p.A. - P. IVA 08365160152 - Via Monte Bianco 60/A 20089 Rozzano (MI). Ogni agenzia ha un proprio titolare ed è autonoma. Privacy policy | Policy utilizzo | Cookie policy