Capannone in vendita

Galliate, Via Ugo Foscolo
€ 690.000
3 locali 3 locali
1700 Mq 1700 Mq
1 bagno 1 bagno

Capannone in vendita

Galliate, Via Ugo Foscolo

Descrizione annuncio

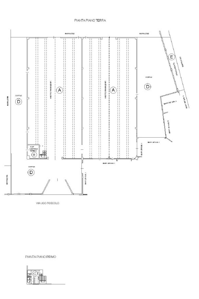
Nell'area industriale di Galliate, proponiamo in vendita un capannone di circa 1.500 mq, ideale per attività artigianali/industriali.

La struttura, costruita nel 1990 e successivamente ristrutturata, si sviluppa interamente al piano terra, offrendo un'ampia superficie operativa. Al primo piano si trova un locale oggi adibito ad ufficio.

Misure utili :

Altezza sotto trave (campana): 5 mAltezza al tetto: 6,5 mCampata: 9,5 mPortone carrabile: larghezza 4,5 m – altezza 4,5 m

Uno dei punti di forza principali è la presenza di tre ingressi distinti, che facilitano l'accesso e la movimentazione delle merci. All'interno, il capannone è dotato di un bagno, garantendo funzionalità e praticità per il personale.

All'esterno un ampio cortile di circa 800 mq circonda la proprietà, offrendo uno spazio che può essere utilizzato per diverse esigenze.

Questa soluzione rappresenta un'opportunità interessante per chi cerca un'ampia metratura in una posizione strategica, con caratteristiche che favoriscono l'efficienza operativa e la logistica.

Mostra tutto

Nelle vicinanze

Trasporto pubblico Trasporto pubblico
Galliate
Galliate
1,4 Km
Via Ticino 135 (Galliate)
Via Ticino 135 (Galliate)
170 m
Via Ticino 120 (Galliate)
Via Ticino 120 (Galliate)
200 m
Ponte Ticino
Ponte Ticino
2,3 Km
Lido di Turbigo
Lido di Turbigo
2,7 Km
Ricariche auto elettriche Ricariche auto elettriche
Galliate Mazzini | BeCharge
1,3 Km
Galliate Galvani | BeCharge
1,9 Km
Lidl Galliate
1,9 Km
EnelX Parrocchiale S. Gaudenzio
2,8 Km
Scuole Scuole
Istituto Comprensivo Italo Calvino
1,3 Km
Asilo Suore Orsoline
1,4 Km
Scuola Media Monsignor Angiolo Gambaro
1,8 Km
Istituto d'Istruzione Superiore Biagio Pascal
2,7 Km
Scuola Media Statale Giulio Pastore
2,8 Km
Farmacia Farmacia
Farmacia Cusaro
1,3 Km
Farmacia Mantellino
1,5 Km
Farmacia Ferrari
1,7 Km
Farmacia La Torre
2,3 Km
Farmacia Venanzi
3,0 Km
Ospedali Ospedali
Ospedale San Rocco
550 m
Supermercati Supermercati
MD Galliate
750 m
Lidl
1,9 Km
Supermercati
2,0 Km
Centro Freschi
2,1 Km
Dico
2,1 Km
Negozi Negozi
Eleganza Guarlotti
1,5 Km
Panetteria Bozzola
1,5 Km
Negozi
1,5 Km
Buondì Maria Concetta
1,5 Km
Garzulino - Mondo Scarpa
2,0 Km
Bar Bar
Bellavista
1,3 Km
Bar
1,3 Km
MAMA'S
1,4 Km
Le due colonne
1,4 Km
Ristoranti Ristoranti
Osteria Del Borgo
1,3 Km
La Cazòla
1,4 Km
Da Edo's Osteria con Pizza
1,4 Km
IL Capriccio 2
1,4 Km
La Rambla
1,5 Km
Mostra tutto

Caratteristiche

Rif.:
61047867
Piano:
2 di 1 (Piano terra)
Condizionamento:
Assente
Ascensore:
No
Riscaldamento:
Autonomo
Giardino:
Privato
Mostra tutto
Prezzo Prezzo
€ 690.000
Rata mutuo Rata mutuo
€ 3.262 / mese
Spese annue Spese annue
€ 0
Proponi il tuo prezzoProponi il tuo prezzo

Classe Energetica

D
D
D
D
D
D
D
D
D
EP globale non rinnovabile:
209.85 kW h/m² anno
EP globale rinnovabile:
84.95 kW h/m² anno
EP invernale del fabbricato:
EP estiva del fabbricato:
Anno di costruzione:
1990
Riscaldamento:
Autonomo
Tipo impianto:
Ad aria
Tipo alimentazione:
Aria

Ti interessa visionare l'immobile?

Fissa un appuntamento  Fissa un appuntamento

Richiedi informazioni

Clicca su Leggi per aprire l'informativa
* Questi campi sono obbligatori

Calcola il tuo mutuo

Semplice e senza impegno
Anticipo

( % )
Mutuo

( % )

pochi semplici passi

inserisci i tuoi dati
Questionario completato
Grazie per aver richiesto un appuntamento senza impegno con un nostro Consulente del Credito e Assicurativo.

Hai inserito correttamente tutti i dati necessari e a breve riceverai una e-mail con un link da convalidare per inviare i tuoi dati.
Affiliato
Studio Galliate Uno Sas
Viale Quagliotti, 62 28066 Galliate (NO)

Il nostro staff


  • Benedetta Brustio
    Coordinatrice

  • Valentina Bozzola
    Collaboratrice

  • Gian Luca Ditella
    Affiliato

  • Martina Galgano
    Collaboratrice

  • Edoardo Ronza
    Affiliato

  • Riccardo Ronza
    Affiliato
Viale Quagliotti, 62 28066 Galliate (NO)
Zona: Galliate-Romentino-Cameri
Mostra su mappa
Orari: Dal Lunedì al Venerdì: 09.00 - 12.30 / 14.30 - 19.30 Sabato: 09.00 - 18.00
Affiliato
Studio Galliate Uno Sas
Viale Quagliotti, 62 28066 Galliate (NO)

2026 Tecnocasa Franchising S.p.A. - P. IVA 08365160152 - Via Monte Bianco 60/A 20089 Rozzano (MI). Ogni agenzia ha un proprio titolare ed è autonoma. Privacy policy | Policy utilizzo | Cookie policy