Capannone in vendita

Galliate, Via XXV Aprile
€ 189.000
2 locali 2 locali
600 Mq 600 Mq
2 bagni 2 bagni

Capannone in vendita

Galliate, Via XXV Aprile

Descrizione annuncio

Vendesi Capannone a Galliate (NO)Possibilità di affitto con riscatto

In posizione comoda e facilmente accessibile, vendesi capannone con ampio spazio esterno privato, ideale per attività artigianali, logistiche o di deposito.

Caratteristiche principali:

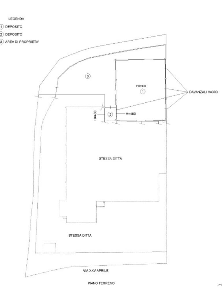
Altezza interna: min. 5 m – max 6,4 m

Campata: 7,5 m

Ingresso capannone: larghezza 3,5 m – altezza 4,2 m

Cancello d’ingresso principale: larghezza 5,5 m

Ampio spazio esterno privato, adatto a manovra mezzi pesanti e parcheggio

Località: Galliate (NO)

Immobile ideale per chi cerca un capannone funzionale con ottimi spazi di manovra e facile

Mostra tutto

Nelle vicinanze

Trasporto pubblico Trasporto pubblico
Galliate
Galliate
2,2 Km
Via Ticino 120 (Galliate)
Via Ticino 120 (Galliate)
750 m
Via Ticino 135 (Galliate)
Via Ticino 135 (Galliate)
780 m
Ponte Ticino
Ponte Ticino
2,2 Km
Lido di Turbigo
Lido di Turbigo
2,5 Km
Ricariche auto elettriche Ricariche auto elettriche
Galliate Mazzini | BeCharge
2,1 Km
Lidl Galliate
2,3 Km
Galliate Galvani | BeCharge
2,4 Km
EnelX Parrocchiale S. Gaudenzio
2,6 Km
EnelX Romentino Piazza mercato
2,9 Km
Scuole Scuole
Istituto Comprensivo Italo Calvino
2,0 Km
Asilo Suore Orsoline
2,0 Km
Scuola Media Monsignor Angiolo Gambaro
2,4 Km
Scuola Media Statale Giulio Pastore
2,5 Km
Istituto d'Istruzione Superiore Biagio Pascal
2,8 Km
Farmacia Farmacia
Farmacia Cusaro
2,0 Km
Farmacia Mantellino
2,1 Km
Farmacia Ferrari
2,4 Km
Farmacia Venanzi
2,8 Km
Farmacia La Torre
2,8 Km
Ospedali Ospedali
Ospedale San Rocco
1,2 Km
Supermercati Supermercati
MD Galliate
1,4 Km
Supermercati
2,2 Km
Centro Freschi
2,3 Km
Dico
2,3 Km
Lidl
2,3 Km
Negozi Negozi
Panetteria Bozzola
2,1 Km
Buondì Maria Concetta
2,2 Km
Negozi
2,2 Km
Eleganza Guarlotti
2,2 Km
Garzulino - Mondo Scarpa
2,2 Km
Bar Bar
Bellavista
2,0 Km
Bar
2,0 Km
MAMA'S
2,1 Km
Le due colonne
2,1 Km
Ristoranti Ristoranti
Il Pesco Selvatico
1,1 Km
Osteria Del Borgo
1,9 Km
IL Capriccio 2
2,0 Km
La Rambla
2,0 Km
La Cazòla
2,1 Km
Mostra tutto

Caratteristiche

Rif.:
61129391
Piano:
1 di 1 (Piano basso)
Posti auto:
2
Condizionamento:
Assente
Ascensore:
No
Riscaldamento:
Autonomo
Mostra tutto
Prezzo Prezzo
€ 189.000
Rata mutuo Rata mutuo
€ 894 / mese
Spese annue Spese annue
€ 0
Proponi il tuo prezzoProponi il tuo prezzo

Classe Energetica

Questo immobile è esente da classe energetica
Anno di costruzione:
1980
Riscaldamento:
Autonomo
Tipo impianto:
A stufa
Tipo alimentazione:
Altro

Ti interessa visionare l'immobile?

Fissa un appuntamento  Fissa un appuntamento

Richiedi informazioni

Clicca su Leggi per aprire l'informativa
* Questi campi sono obbligatori

Calcola il tuo mutuo

Semplice e senza impegno
Anticipo

( % )
Mutuo

( % )

pochi semplici passi

inserisci i tuoi dati
Questionario completato
Grazie per aver richiesto un appuntamento senza impegno con un nostro Consulente del Credito e Assicurativo.

Hai inserito correttamente tutti i dati necessari e a breve riceverai una e-mail con un link da convalidare per inviare i tuoi dati.
Affiliato
Studio Galliate Uno Sas
Viale Quagliotti, 62 28066 Galliate (NO)

Il nostro staff


  • Benedetta Brustio
    Coordinatrice

  • Valentina Bozzola
    Collaboratrice

  • Gian Luca Ditella
    Affiliato

  • Martina Galgano
    Collaboratrice

  • Edoardo Ronza
    Affiliato

  • Riccardo Ronza
    Affiliato
Viale Quagliotti, 62 28066 Galliate (NO)
Zona: Galliate-Romentino-Cameri
Mostra su mappa
Orari: Dal Lunedì al Venerdì: 09.00 - 12.30 / 14.30 - 19.30 Sabato: 09.00 - 18.00
Affiliato
Studio Galliate Uno Sas
Viale Quagliotti, 62 28066 Galliate (NO)

2026 Tecnocasa Franchising S.p.A. - P. IVA 08365160152 - Via Monte Bianco 60/A 20089 Rozzano (MI). Ogni agenzia ha un proprio titolare ed è autonoma. Privacy policy | Policy utilizzo | Cookie policy