Rustico in vendita

Galliate, Via San Giuseppe Maria Gambaro
€ 26.000
4 locali 4 locali
80 Mq 80 Mq

Rustico in vendita

Galliate, Via San Giuseppe Maria Gambaro

Descrizione annuncio

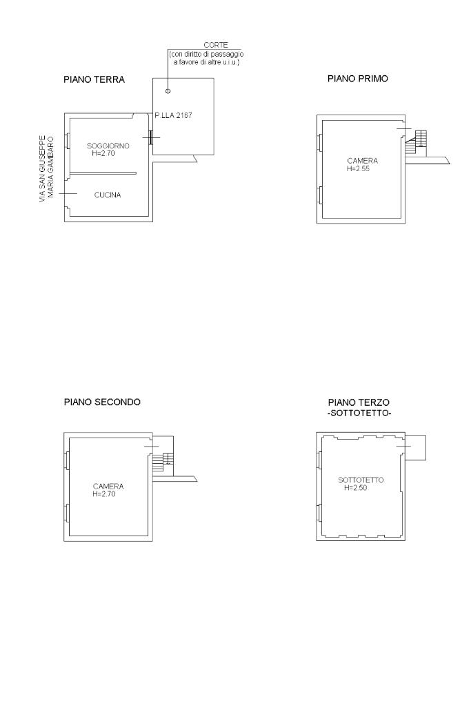
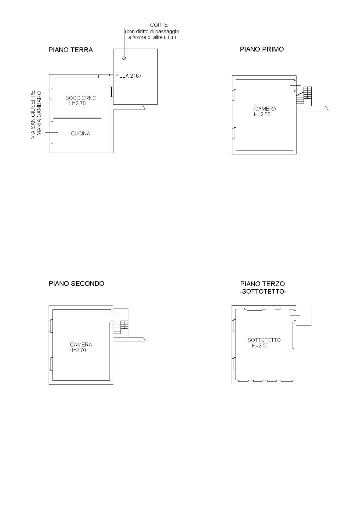
GALLIATE: RUSTICO IN VENDITA

Nel cuore del comune di Galliate, proponiamo un rustico che offre un'opportunità unica per chi desidera personalizzare la propria abitazione.

L'immobile si sviluppa su tre livelli, garantendo spazi ben distribuiti e versatili, ed è composto da soggiorno, cucina e tre camere.

La posizione centrale rappresenta un punto di forza, permettendo di godere di tutti i servizi e le comodità che Galliate offre, senza rinunciare alla tranquillità di una residenza privata.

Le immagini del render hanno scopo puramente illustrativo e non fanno parte dell'offerta commerciale. Il rustico in vendita è da ristrutturare e la ristrutturazione mostrata è solo un'idea di possibile realizzazione del cliente.

Mostra tutto

Nelle vicinanze

Trasporto pubblico Trasporto pubblico
Galliate
Galliate
600 m
Viale Dante Alighieri 66 (Galliate)
Viale Dante Alighieri 66 (Galliate)
200 m
Viale Leonardo da Vinci 108 (Galliate)
Viale Leonardo da Vinci 108 (Galliate)
330 m
Ricariche auto elettriche Ricariche auto elettriche
Galliate Mazzini | BeCharge
390 m
Galliate Galvani | BeCharge
510 m
Lidl Galliate
770 m
EnelX Parrocchiale S. Gaudenzio
2,4 Km
EnelX Romentino Piazza mercato
2,6 Km
Scuole Scuole
Asilo Suore Orsoline
170 m
Scuola Media Monsignor Angiolo Gambaro
270 m
Istituto Comprensivo Italo Calvino
350 m
Istituto d'Istruzione Superiore Biagio Pascal
1,8 Km
Asilo Infantile Pernate
2,3 Km
Farmacia Farmacia
Farmacia Mantellino
100 m
Farmacia Ferrari
210 m
Farmacia Cusaro
250 m
Farmacia La Torre
770 m
Farmacia Venanzi
2,4 Km
Ospedali Ospedali
Ospedale San Rocco
1,0 Km
Supermercati Supermercati
Lidl
730 m
MD Galliate
830 m
Ipercoop
830 m
Sapore di Mare
970 m
Supermercati
1,0 Km
Negozi Negozi
Negozi
40 m
Buondì Maria Concetta
50 m
Panetteria Bozzola
70 m
Eleganza Guarlotti
200 m
Shun Fa
770 m
Bar Bar
Bar
90 m
Le due colonne
160 m
MAMA'S
190 m
Bellavista
240 m
Ristoranti Ristoranti
Muzzica
50 m
La Cazòla
130 m
Hostaria d'Argascia
150 m
Da Edo's Osteria con Pizza
150 m
La Rambla
200 m
Mostra tutto

Caratteristiche

Rif.:
61156453
Piano:
Su più livelli di 3
Totale piani:
3
Balconi:
2
Camere da letto:
3
Arredamento:
Assente
Mostra tutto
Prezzo Prezzo
€ 26.000
Rata mutuo Rata mutuo
€ 123 / mese
Spese annue Spese annue
€ 0
Proponi il tuo prezzoProponi il tuo prezzo

Classe Energetica

G
G
G
G
G
G
G
G
G
EP globale non rinnovabile:
302.32 kW h/m² anno
EP globale rinnovabile:
0.92 kW h/m² anno
EP invernale del fabbricato:
EP estiva del fabbricato:
Anno di costruzione:
1950
Riscaldamento:
Autonomo
Tipo impianto:
A radiatori
Tipo alimentazione:
Metano

Ti interessa visionare l'immobile?

Fissa un appuntamento  Fissa un appuntamento

Richiedi informazioni

Clicca su Leggi per aprire l'informativa
* Questi campi sono obbligatori

Calcola il tuo mutuo

Semplice e senza impegno
Anticipo

( % )
Mutuo

( % )

pochi semplici passi

inserisci i tuoi dati
Questionario completato
Grazie per aver richiesto un appuntamento senza impegno con un nostro Consulente del Credito e Assicurativo.

Hai inserito correttamente tutti i dati necessari e a breve riceverai una e-mail con un link da convalidare per inviare i tuoi dati.
Affiliato
Studio Galliate Uno Sas
Viale Quagliotti, 62 28066 Galliate (NO)

Il nostro staff


  • Benedetta Brustio
    Coordinatrice

  • Valentina Bozzola
    Collaboratrice

  • Gian Luca Ditella
    Affiliato

  • Martina Galgano
    Collaboratrice

  • Edoardo Ronza
    Affiliato

  • Riccardo Ronza
    Affiliato
Viale Quagliotti, 62 28066 Galliate (NO)
Zona: Galliate-Romentino-Cameri
Mostra su mappa
Orari: Dal Lunedì al Venerdì: 09.00 - 12.30 / 14.30 - 19.30 Sabato: 09.00 - 18.00
Affiliato
Studio Galliate Uno Sas
Viale Quagliotti, 62 28066 Galliate (NO)

2026 Tecnocasa Franchising S.p.A. - P. IVA 08365160152 - Via Monte Bianco 60/A 20089 Rozzano (MI). Ogni agenzia ha un proprio titolare ed è autonoma. Privacy policy | Policy utilizzo | Cookie policy