Villa a schiera in vendita

Galliate, Via Giacomo Peroni
€ 349.000
4 locali 4 locali
210 Mq 210 Mq
2 bagni 2 bagni

Villa a schiera in vendita

Galliate, Via Giacomo Peroni

Descrizione annuncio

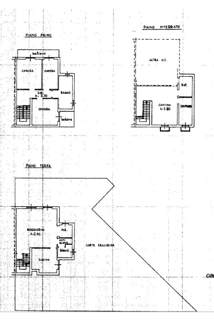
Villetta a Schiera di Testa con Ampio Giardino Privato e Box Doppio.

La villetta è stata oggetto di bonus 110, dotata di cappotto termico, impianto fotovoltaico e infissi doppio vetro.

In zona tranquilla e residenziale proponiamo villetta a schiera di testa libera su tre lati, caratterizzata da ampi spazi interni e grande giardino privato ideale per famiglie o per chi ama vivere all’aperto.

L’abitazione si sviluppa su due livelli e si compone di:

Zona giorno luminosa con soggiorno e cucina abitabile con accesso diretto al giardino

Tre camere da letto con balconi

Due bagni finestrati, modernamente rifiniti

Taverna accogliente e funzionale, perfetta come area relax, studio o spazio hobby con annessa lavanderia

Box doppio con comodo accesso

Mostra tutto

Nelle vicinanze

Trasporto pubblico Trasporto pubblico
Galliate
Galliate
1,3 Km
Via Novara, 49 (Galliate)
Via Novara, 49 (Galliate)
690 m
Viale Dante Alighieri 66 (Galliate)
Viale Dante Alighieri 66 (Galliate)
700 m
Ricariche auto elettriche Ricariche auto elettriche
Galliate Galvani | BeCharge
210 m
Lidl Galliate
260 m
Galliate Mazzini | BeCharge
1,1 Km
EnelX Parrocchiale S. Gaudenzio
1,9 Km
EnelX Romentino Piazza mercato
2,1 Km
Scuole Scuole
Scuola Media Monsignor Angiolo Gambaro
500 m
Asilo Suore Orsoline
780 m
Istituto Comprensivo Italo Calvino
1,1 Km
Istituto d'Istruzione Superiore Biagio Pascal
1,1 Km
Scuola Media Statale Giulio Pastore
2,0 Km
Farmacia Farmacia
Farmacia La Torre
450 m
Farmacia Ferrari
730 m
Farmacia Mantellino
810 m
Farmacia Cusaro
880 m
Farmacia Venanzi
1,9 Km
Ospedali Ospedali
Ospedale San Rocco
1,5 Km
Supermercati Supermercati
Lidl
210 m
Centro Freschi
510 m
Supermercati
520 m
Dico
550 m
Ipercoop
580 m
Negozi Negozi
Shun Fa
430 m
Garzulino - Mondo Scarpa
530 m
Spaccio Nuvola Outlet
540 m
Maxi Zoo
660 m
Takko Fashion
670 m
Bar Bar
Bar
800 m
Le due colonne
870 m
Bellavista
870 m
MAMA'S
900 m
Ristoranti Ristoranti
Koii Sushi
410 m
The Kitchen Inn
440 m
La Rambla
660 m
IL Capriccio 2
670 m
Muzzica
750 m
Mostra tutto

Caratteristiche

Rif.:
61123480
Piano:
2 di 2 (Piano su più livelli)
Box:
1
Balconi:
1
Terrazzi:
1
Camere da letto:
3
Mostra tutto
Prezzo Prezzo
€ 349.000
Rata mutuo Rata mutuo
€ 1.603 / mese
Spese annue Spese annue
€ 1.000
Proponi il tuo prezzoProponi il tuo prezzo

Classe Energetica

D
D
D
D
D
D
D
D
D
EP globale non rinnovabile:
170.19 kW h/m² anno
EP globale rinnovabile:
87.24 kW h/m² anno
EP invernale del fabbricato:
EP estiva del fabbricato:
Anno di costruzione:
1996
Riscaldamento:
Autonomo
Tipo impianto:
A radiatori
Tipo alimentazione:
Metano

Ti interessa visionare l'immobile?

Fissa un appuntamento  Fissa un appuntamento

Richiedi informazioni

* Questi campi sono obbligatori

Calcola il tuo mutuo

Semplice e senza impegno
Anticipo

( % )
Mutuo

( % )

pochi semplici passi

inserisci i tuoi dati
Questionario completato
Grazie per aver richiesto un appuntamento senza impegno con un nostro Consulente del Credito e Assicurativo.

Hai inserito correttamente tutti i dati necessari e a breve riceverai una e-mail con un link da convalidare per inviare i tuoi dati.
Affiliato
Studio Galliate Uno Sas
Viale Quagliotti, 62 28066 Galliate (NO)

Il nostro staff


  • Benedetta Brustio
    Coordinatrice

  • Valentina Bozzola
    Collaboratrice

  • Gian Luca Ditella
    Affiliato

  • Martina Galgano
    Collaboratrice

  • Edoardo Ronza
    Affiliato

  • Riccardo Ronza
    Affiliato
Viale Quagliotti, 62 28066 Galliate (NO)
Zona: Galliate-Romentino-Cameri
Mostra su mappa
Orari: Dal Lunedì al Venerdì: 09.00 - 12.30 / 14.30 - 19.30 Sabato: 09.00 - 18.00
Affiliato
Studio Galliate Uno Sas
Viale Quagliotti, 62 28066 Galliate (NO)

2025 Tecnocasa Franchising S.p.A. - P. IVA 08365160152 - Via Monte Bianco 60/A 20089 Rozzano (MI). Ogni agenzia ha un proprio titolare ed è autonoma. Privacy policy | Policy utilizzo | Cookie policy