Villa singola in vendita

Ghislarengo, Via Gaudenzio Ferrari
€ 89.000
2 locali 2 locali
130 Mq 130 Mq
1 bagno 1 bagno

Villa singola in vendita

Ghislarengo, Via Gaudenzio Ferrari

Descrizione annuncio

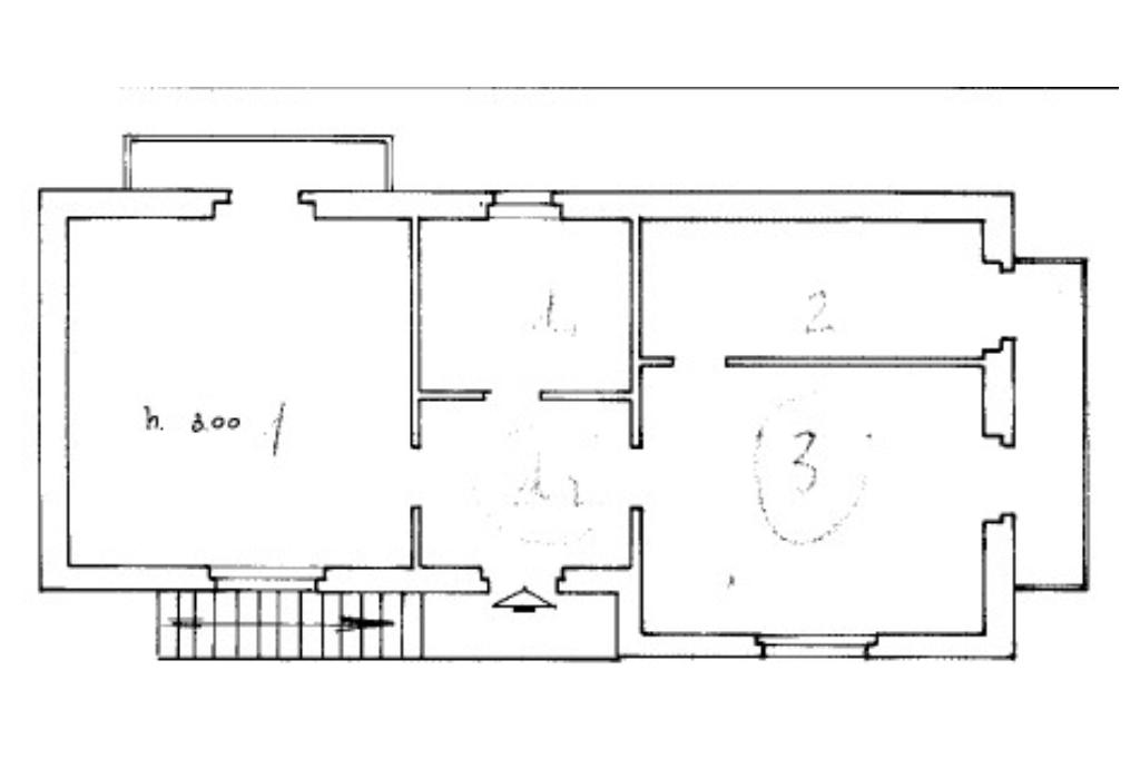
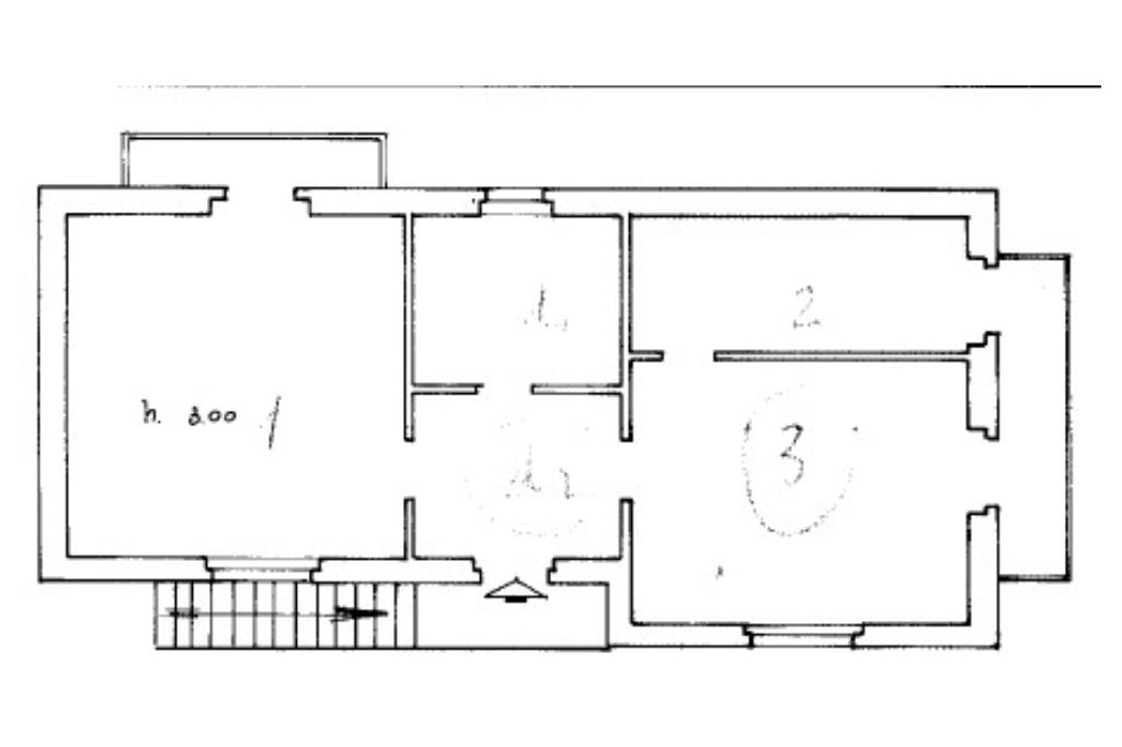
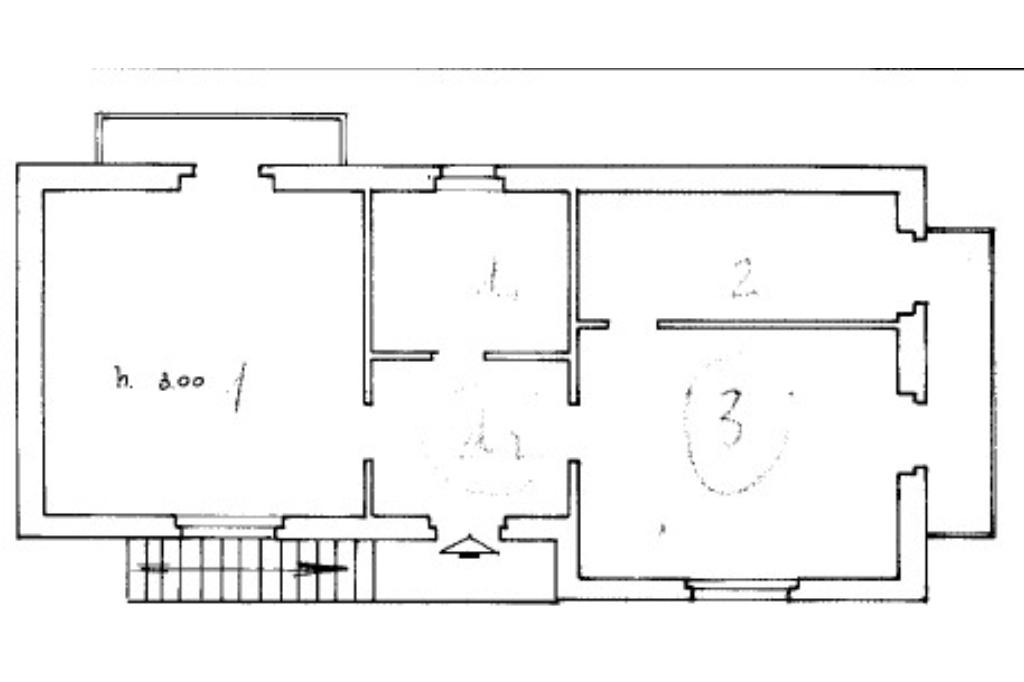
Ghislarengo - In vendita una villetta indipendente che offre comfort e funzionalità.

La proprietà è composta da soggiorno, cucina una camera da letto e un bagno. E' dotata di due balconi che garantiscono luminosità e una piacevole vista sul giardino privato.

Un ulteriore spazio è offerto dalla taverna, ideale per momenti di relax o per ospitare amici e familiari.

Completa la proprietà un box auto, che assicura comodità e sicurezza per il parcheggio. Di pertinenza, un terreno agricolo di 230 mq, perfetto per chi desidera coltivare un orto o semplicemente godere di uno spazio verde aggiuntivo.

Questa soluzione abitativa rappresenta un'opportunità unica per chi cerca indipendenza e tranquillità.

Mostra tutto

Nelle vicinanze

Trasporto pubblico Trasporto pubblico
Ghislarengo
Ghislarengo
820 m
Carpignano Sesia
Carpignano Sesia
2,9 Km
Ricariche auto elettriche Ricariche auto elettriche
Carpignano Micca | EnelX
2,3 Km
Carpignano Lunati | EnelX
2,4 Km
Carpignano Minoretti | EnelX
2,6 Km
Scuole Scuole
Scuola Elementare
350 m
Farmacia Farmacia
Farmacia
380 m
Bar Bar
La sosta
300 m
Bar
350 m
Miami Cafè
2,5 Km
Ristoranti Ristoranti
Da Beppe e Maria
170 m
Agriturismo Samarcanda
2,3 Km
Ristorante Aquila Nera
2,5 Km
Ristoranti
2,5 Km
Ristorante Nazionale
2,7 Km
Mostra tutto

Caratteristiche

Rif.:
61153008
Piano:
1 di 2 (Piano su più livelli)
Box:
1
Balconi:
2
Camere da letto:
1
Arredamento:
Assente
Mostra tutto
Prezzo Prezzo
€ 89.000
Rata mutuo Rata mutuo
€ 416 / mese
Spese annue Spese annue
€ 0
Proponi il tuo prezzoProponi il tuo prezzo

Classe Energetica

G
G
G
G
G
G
G
G
G
EP globale non rinnovabile:
571.11 kW h/m² anno
EP globale rinnovabile:
133.03 kW h/m² anno
EP invernale del fabbricato:
EP estiva del fabbricato:
Anno di costruzione:
1967
Riscaldamento:
Autonomo
Tipo impianto:
A radiatori
Tipo alimentazione:
Metano

Ti interessa visionare l'immobile?

Fissa un appuntamento  Fissa un appuntamento

Richiedi informazioni

Clicca su Leggi per aprire l'informativa
* Questi campi sono obbligatori

Calcola il tuo mutuo

Semplice e senza impegno
Anticipo

( % )
Mutuo

( % )

pochi semplici passi

inserisci i tuoi dati
Questionario completato
Grazie per aver richiesto un appuntamento senza impegno con un nostro Consulente del Credito e Assicurativo.

Hai inserito correttamente tutti i dati necessari e a breve riceverai una e-mail con un link da convalidare per inviare i tuoi dati.
Affiliato
Studio Galliate Uno Sas
Viale Quagliotti, 62 28066 Galliate (NO)

Il nostro staff


  • Benedetta Brustio
    Coordinatrice

  • Valentina Bozzola
    Collaboratrice

  • Gian Luca Ditella
    Affiliato

  • Martina Galgano
    Collaboratrice

  • Edoardo Ronza
    Affiliato

  • Riccardo Ronza
    Affiliato
Viale Quagliotti, 62 28066 Galliate (NO)
Zona: Galliate-Romentino-Cameri
Mostra su mappa
Orari: Dal Lunedì al Venerdì: 09.00 - 12.30 / 14.30 - 19.30 Sabato: 09.00 - 18.00
Affiliato
Studio Galliate Uno Sas
Viale Quagliotti, 62 28066 Galliate (NO)

2026 Tecnocasa Franchising S.p.A. - P. IVA 08365160152 - Via Monte Bianco 60/A 20089 Rozzano (MI). Ogni agenzia ha un proprio titolare ed è autonoma. Privacy policy | Policy utilizzo | Cookie policy