Capannone in vendita

Romentino, Strada Cardana
€ 280.000
3 locali 3 locali
600 Mq 600 Mq
2 bagni 2 bagni

Capannone in vendita

Romentino, Strada Cardana

Descrizione annuncio

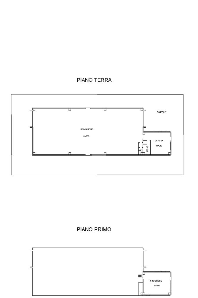
VENDESI CAPANNONE ARTIGIANALE CON AMPIO CORTILE PRIVATO – 600 MQ COMMERCIALI

Proponiamo in vendita capannone artigianale in ottimo stato, dotato di ampio cortile privato e facilità di manovra per mezzi pesanti. Ideale per attività produttive, artigianali o logistiche.

CARATTERISTICHE PRINCIPALI:

Superficie commerciale totale: 600 mq

Capannone: 390 mq con pavimentazione rinforzata per mezzi pesanti
Cortile esterno: 1.700 mq

Area con possibilità di parcheggio: fino a 500 mq
Ampio spazio di manovra per bilici e mezzi pesanti

DIMENSIONI STRUTTURA:

Campata: 8,5 m

Altezza interna: 7,5 m

Larghezza: 11,60 m

Lunghezza: 27 m

ACCESSI E APERTURE:

Portone d’ingresso: Larghezza 4,00 m – Altezza 4,20 m

Cancello elettrico principale: Larghezza 6,80 m

DOTAZIONI INTERNE:

2 uffici da 35 mq ciascuno

2 bagni

Impianto d’allarme installato

Tetto revisionato a settembre 2025

Interni tinteggiati a settembre 2025

Caldaia a condensazione

PRONTO ALL’USO – IDEALE PER DIVERSE TIPOLOGIE DI ATTIVITÀ

Mostra tutto

Nelle vicinanze

Trasporto pubblico Trasporto pubblico
Romentino (capolinea)
Romentino (capolinea)
290 m
Via XXIV Maggio - Via Roma (Romentino)
Via XXIV Maggio - Via Roma (Romentino)
560 m
Ricariche auto elettriche Ricariche auto elettriche
EnelX Romentino Piazza mercato
580 m
EnelX Parrocchiale S. Gaudenzio
810 m
Lidl Galliate
2,5 Km
Galliate Galvani | BeCharge
2,8 Km
Scuole Scuole
Scuola Elementare Edmondo De Amicis
460 m
Scuola Media Statale Giulio Pastore
750 m
Istituto d'Istruzione Superiore Biagio Pascal
1,6 Km
Istituto Comprensivo Cronilde Musso
2,8 Km
Scuole
2,8 Km
Farmacia Farmacia
Farmacia Venanzi
800 m
Supermercati Supermercati
Supermercati
610 m
Dico
2,1 Km
Centro Freschi
2,2 Km
Lidl
2,2 Km
Il gigante
2,3 Km
Negozi Negozi
Spaccio Nuvola Outlet
2,1 Km
Garzulino - Mondo Scarpa
2,2 Km
Tecnowear
2,2 Km
Bar Bar
Bar
630 m
Ristoranti Ristoranti
Trattoria del Gallo
510 m
Ma Dai
540 m
Locanda la Torraccia
570 m
Le Volte
640 m
Pizzeria il Girasole
650 m
Mostra tutto

Caratteristiche

Rif.:
61119798
Piano:
1 di 1 (Piano terra)
Posti auto:
5
Condizionamento:
Autonomo
Ascensore:
No
Riscaldamento:
Autonomo
Mostra tutto
Prezzo Prezzo
€ 280.000
Rata mutuo Rata mutuo
€ 1.324 / mese
Spese annue Spese annue
€ 0
Proponi il tuo prezzoProponi il tuo prezzo

Classe Energetica

C
C
C
C
C
C
C
C
C
Anno di costruzione:
2004
Riscaldamento:
Autonomo
Tipo impianto:
Ad aria
Tipo alimentazione:
Pannelli

Ti interessa visionare l'immobile?

Fissa un appuntamento  Fissa un appuntamento

Richiedi informazioni

Clicca su Leggi per aprire l'informativa
* Questi campi sono obbligatori

Calcola il tuo mutuo

Semplice e senza impegno
Anticipo

( % )
Mutuo

( % )

pochi semplici passi

inserisci i tuoi dati
Questionario completato
Grazie per aver richiesto un appuntamento senza impegno con un nostro Consulente del Credito e Assicurativo.

Hai inserito correttamente tutti i dati necessari e a breve riceverai una e-mail con un link da convalidare per inviare i tuoi dati.
Affiliato
Studio Galliate Uno Sas
Viale Quagliotti, 62 28066 Galliate (NO)

Il nostro staff


  • Benedetta Brustio
    Coordinatrice

  • Valentina Bozzola
    Collaboratrice

  • Gian Luca Ditella
    Affiliato

  • Martina Galgano
    Collaboratrice

  • Edoardo Ronza
    Affiliato

  • Riccardo Ronza
    Affiliato
Viale Quagliotti, 62 28066 Galliate (NO)
Zona: Galliate-Romentino-Cameri
Mostra su mappa
Orari: Dal Lunedì al Venerdì: 09.00 - 12.30 / 14.30 - 19.30 Sabato: 09.00 - 18.00
Affiliato
Studio Galliate Uno Sas
Viale Quagliotti, 62 28066 Galliate (NO)

2026 Tecnocasa Franchising S.p.A. - P. IVA 08365160152 - Via Monte Bianco 60/A 20089 Rozzano (MI). Ogni agenzia ha un proprio titolare ed è autonoma. Privacy policy | Policy utilizzo | Cookie policy